Planlösningar

Letar du efter information om planlösningar för kök? Då har du kommit helt rätt. Vi har samlat information om de vanligaste typerna, prallellkök, vinkelkök, U-kök, rakt kök och kök med köksö, utforska vad som passar ditt hem bäst. Vi guidar dig.

Marbodal Form Hav - kökslucka målad i blå kulör. Bänkskiva Vit i laminat. Handtag Retro krom. Hav är en klassisk färg som håller över tid och som skapar ett personligt och uttrycksfullt hem.

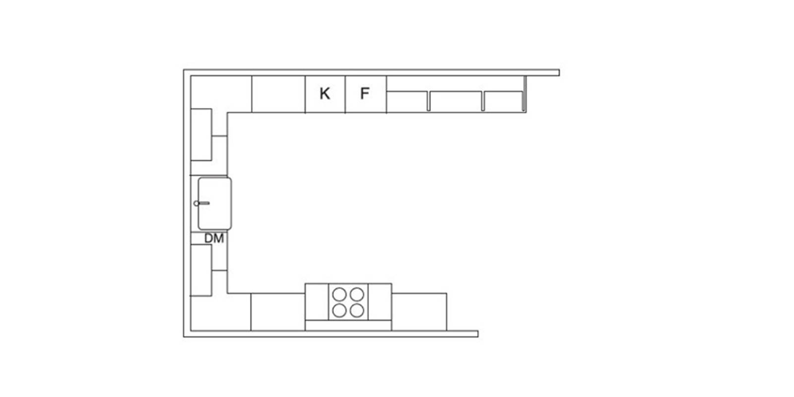
U-kök

Om utrymmet för köksytan är genereöst på bredden så kan ett u-kök passa väldigt bra. U-kök är ett hörnkök som är väldigt praktiskt, här finns det rum för mycket arbetsytor en närhet till allt för den som jobbar i köket. 

Här är ett exempel på ett u-kök som inspiration

Illustration av u-format kök

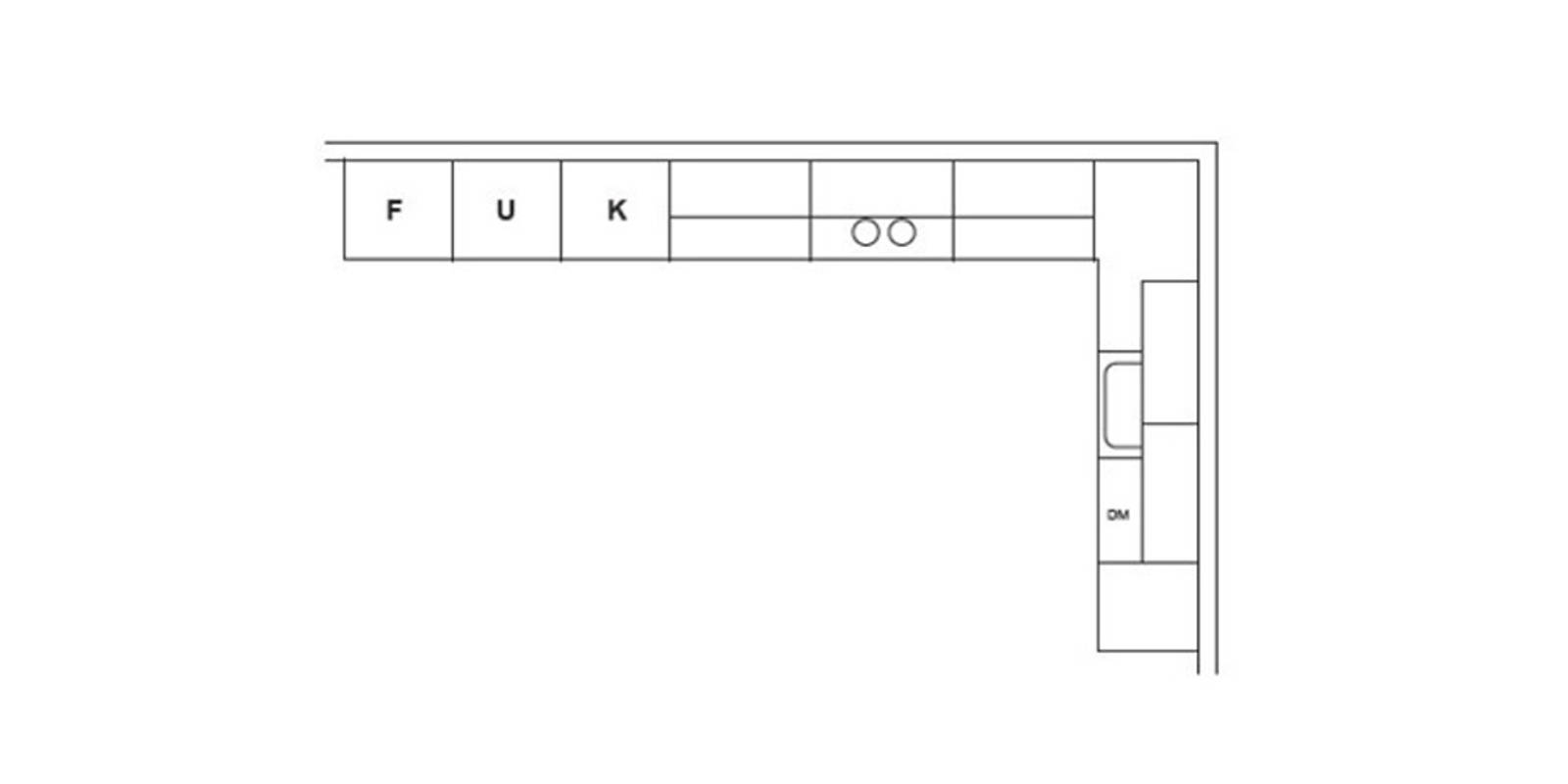
Vinkelkök

Vinkelköket - även kallat L-kök - tillhör en av de vanligaste planlösningarna. Här finns tillräckligt med arbetsyta och utrymme för matbord eller köksö.  Ett vinkelkök passar bra om man gillar att vara flera i köket. 

Här är ett exempel på ett vinkelkök som inspiration 

Illustration av vinkelkök

Parallellkök

Parallellkök kallas ibland även för korridorkök och är vanligt i lägenheter likväl som i villor. Här finns utrymme för mycket arbetsyta och ger möjlighet till en bra placering och en närhet mellan de viktigaste platserna i köket, spisen, diskhon och kylen. 

Här är ett exempel på ett parallellkök som inspiration

Illustration av paralellkök

Rakt kök

När man endast har en möblerbar vägg att jobba med så passar ett rakt kök bra. Det är luftigt och enkelt att planera och passar utmärkt i en öppen planslöning. 

Här är ett exempel på ett rakt kök som inspiration

Illustration av litet rakt kök

Kök med köksö

När man endast har en möblerbar vägg att jobba med så passar ett rakt kök bra. Det är luftigt och enkelt att planera och passar utmärkt i en öppen planslöning. 

Här är ett exempel på ett rakt kök som inspiration

Illustration av kök med köksö